MODERNE OG INDBYDENDE RÆKKEHUS MED PRIVAT HAVE I SKALBORG

Stationsmestervej 126, 9200 Aalborg SV / 3 værelser / 100m2 / 1850000
Åbent hus: 19.04.2026 fra kl. 10:00 til kl. 15:00
Tilmeld her / se flere datoer

MODERNE OG INDBYDENDE RÆKKEHUS MED PRIVAT HAVE I SKALBORG

På Stationsmestervej 126 i Aalborg SV finder du dette lyse og moderniserede rækkehus på 100 m² med garage. Boligen fremstår indflytningsklar med en god planløsning og en indbydende atmosfære. Samtidig får du en hyggelig have med masser af privatliv – perfekt til både stille morgener og lange sommeraftener.

Området
Skalborg – en populær bydel i 9200 Aalborg SV – byder på det bedste fra både by og forstad. Her har du kort afstand til blandt andet Bilka, Aalborg Storcenter og Shoppen. Området har et aktivt foreningsliv med blandt andet Skalborg Sportsklub, som samler både børn og voksne omkring sport og fællesskab. Her er gode transportforbindelser til Aalborg Centrum og nem adgang til det hele, samtidig med at du bor i rolige og trygge rammer.

Hjemmet
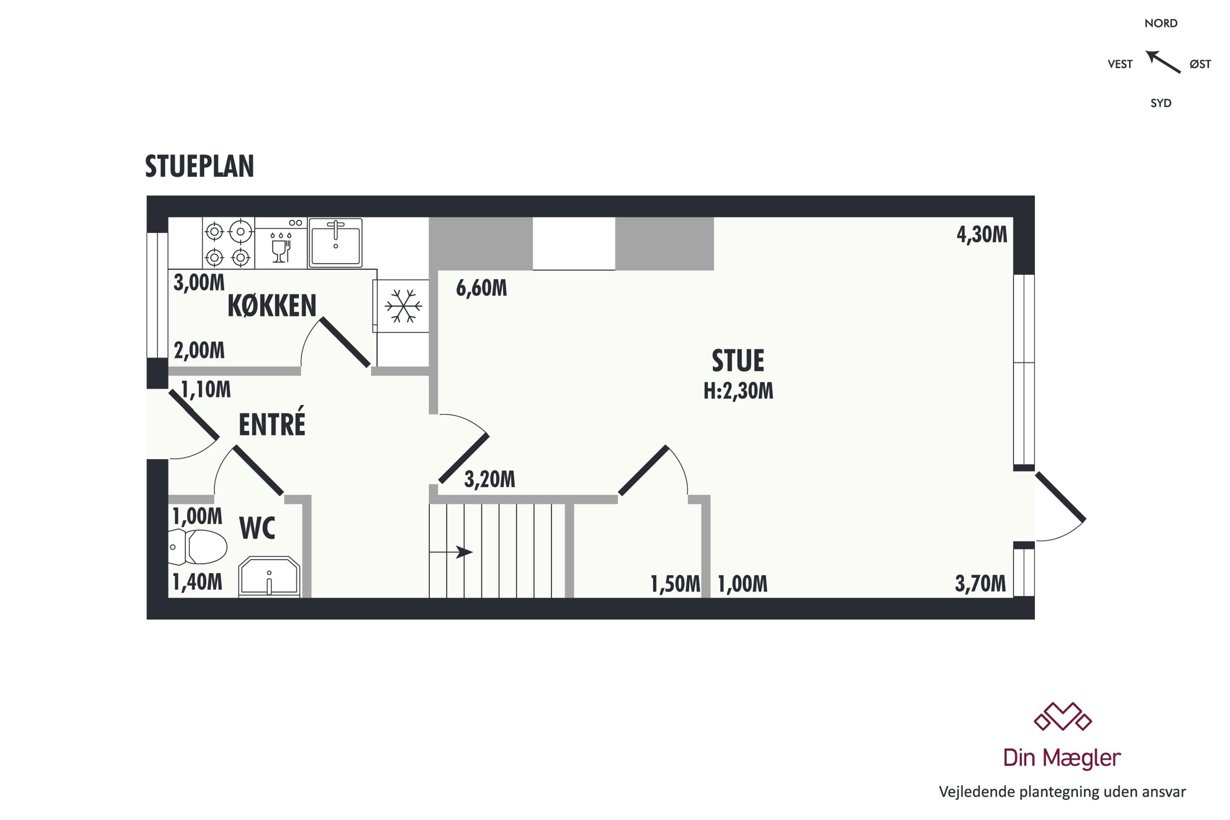
Boligen byder på en god og funktionel planløsning med toilet i stueplan, køkken og en stor, rummelig stue med et dejligt lysindfald og direkte udgang til haven. Her bliver uderummet en naturlig forlængelse af boligen – perfekt til afslapning, hyggelige stunder og gæster i private omgivelser.

På 1. sal finder du et nyere badeværelse samt to gode soveværelser. Derudover er der adgang til et loftrum, som rummer spændende muligheder – hvad enten du drømmer om hjemmebiograf, opholdsrum eller blot har behov for ekstra opbevaringsplads.

Boligen fremstår velholdt med de fleste vinduer og døre udskiftet, nyere lofter og efterisolerede gulve, hvilket bidrager til både komfort og et forbedret indeklima. Til ejendommen medfølger desuden en garage.


Om boligen kan vi fremhæve:
• Flot renoveret og indflytningsklart
• Dejlig ugeneret have og terrasse
• Stor og lys stue med udgang til haven
• Bonusareal i tagetagen
• Attraktiv og rolig beliggenhed i Skalborg

Et hjem med varme, lys og gode rammer – perfekt til dig, der ønsker en tryg base tæt på det hele.

Kontakt Din Mægler på 72170004 eller info@dmbolig.dk for mere info og fremvisning.

Bestil fremvisning

Salgsvurdering af dit hjem

Hvis du er interesseret i at vide, hvad dit hjem er værd, kan du nemt og hurtigt bestille en salgsvurdering her. Den er selvfølgelig gratis og uforpligtende:

Rasmus Lund Christensen

Kontakt os for mere info eller
bestilling af fremvisning

Rasmus Lund Christensen

Indehaver - Ejendomsmægler MDE

Book salgsvurdering